Portfolio

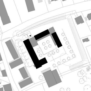
Quartierstreffpunkt Leverkusen - Neubau Sporthalle, offener Ganztag, Mensa und interkultureller Treffpunkt

Quartierstreffpunkt Leverkusen

Neubau Sporthalle, offener Ganztag, Mensa und interkultureller Treffpunkt

Wettbewerb 2. Preis 2018

Ausloberin Stadt Leverkusen

Kita Verl - Neubau 5-zügige Kita in Sürenheide-Verl

Kita Verl

Neubau 5-zügige Kita in Sürenheide-Verl

Verhandlungsverfahren Zuschlag 2017

Realisierung 2020

Bauherrin Stadt Verl

Mariengrundschule Greven - Neubau Schultrakt und barrierefreie Erschließung der gesamten Grundschule

Mariengrundschule Greven

Neubau Schultrakt und barrierefreie Erschließung der gesamten Grundschule

Verhandlungsverfahren Zuschlag 2015

Realisierung 2017

Bauherrin Stadt Greven, Technische Betriebe

Klaras Kinderhaus - Neubau 2-Gruppenkita im Klarastift Münster

Klaras Kinderhaus

Neubau 2-Gruppenkita im Klarastift Münster

Realisierung 2017

Bauherr Vereinigte Pfründnerhäuser Münster

Verwaltungsgebäude Coesfelder Kreuz - Neubau Verwaltungsgebäude der Evangelischen Kirche am Coesfelder Kreuz in Münster

Verwaltungsgebäude Coesfelder Kreuz

Neubau Verwaltungsgebäude der Evangelischen Kirche am Coesfelder Kreuz in Münster

Wettbewerb 3. Preis 2017

Auslober Verband der Evangelischen Kirchenkreise Münster

Waldschule Buchholz - Erweiterung der Waldschule Buchholz in der Nordheide

Waldschule Buchholz

Erweiterung der Waldschule Buchholz in der Nordheide

Wettbewerb 2. Preis 2017

Ausloberin Stadt Buchholz

Stadthalle Gütersloh - Neugestaltung Fassade Stadthalle Gütersloh

Stadthalle Gütersloh

Neugestaltung Fassade Stadthalle Gütersloh

Wettbewerb 1. Preis 2017

Ausloberin Stadt Gütersloh

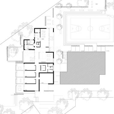
Mensa Greven - Neubau einer Mensa für die Gesamtschule in Greven. In Zusammenarbeit mit brandenfels landscape + environment

Mensa Greven

Neubau einer Mensa für die Gesamtschule in Greven. In Zusammenarbeit mit brandenfels landscape + environment

Wettewerb 2. Preis 2016

Ausloberin Stadt Greven

Pfarrheim St. Marien - Neubau des Pfarrheims an der denkmalgeschützen Kirche in Marl-Lenkerbeck

Pfarrheim St. Marien

Neubau des Pfarrheims an der denkmalgeschützen Kirche in Marl-Lenkerbeck

Wettbewerb 1. Preis 2016

Realisierung 2019

Bauherr Katholische Kirchengemeinde St. Franziskus Marl

Parkhaus Uni Münster - Fassadengestaltung Parkhaus am Coesfelder Kreuz in Münster

Parkhaus Uni Münster

Fassadengestaltung Parkhaus am Coesfelder Kreuz in Münster

Wettbewerb 1. Preis 2013

Realisierung 2016

Bauherr BLB Bau- und Liegenschaftsbetrieb NRW

Gesamtschule Münster-Ost - Neubau 6-zügige Gesamtschule mit Kita und Vierfeldsporthalle

Gesamtschule Münster-Ost

Neubau 6-zügige Gesamtschule mit Kita und Vierfeldsporthalle

Wettbewerb Anerkennung 2016

Auslober Stadt Münster

Pfarrheim St. Georg - Angliederung eines Pfarrheims an eine bestehende Kirche in Heiden

Pfarrheim St. Georg

Angliederung eines Pfarrheims an eine bestehende Kirche in Heiden

Wettbewerb 1. Preis 2015

Realisierung 2017

Bauherr Katholische Kirchengemeinde St. Georg Heiden

Gemeinde St. Margareta - Neubau eines Gemeindehauses in Lengerich

Gemeinde St. Margareta

Neubau eines Gemeindehauses in Lengerich

Wettbewerb 1. Preis 2014

Realisierung 2017

Bauherr Katholische Kirchengemeinde Seliger Niels Stensen Lengerich

Bio-Schaukäserei Münster - Neubau einer Bio-Schaukäserei sowie Geschäftsräume am Stadthafen

Bio-Schaukäserei Münster

Neubau einer Bio-Schaukäserei sowie Geschäftsräume am Stadthafen

Wettbewerb 1. Preis 2013

Realisierung 2015

Bauherr Hafengesellschaft mbh 2012

Sporthalle Münster-Ost - Neubau Zweifeldsporthalle in Münster

Sporthalle Münster-Ost

Neubau Zweifeldsporthalle in Münster

Wettbewerb 1. Preis 2012

Realisierung 2015

Bauherr Stadt Münster, Amt für Immobilienmanagement

Gymnasium Augustinianum - Neubau des naturwissenschaftlichen Traktes des Gymnasiums Augustinianum in Greven

Gymnasium Augustinianum

Neubau des naturwissenschaftlichen Traktes des Gymnasiums Augustinianum in Greven

Wettbewerb 3. Preis 2015

Ausloberin Stadt Greven

Johann-Heinrich-Schmülling-Schule - Neubau eines zentralen Schulhauses der Johann-Heinrich-Schmülling-Schule in Warendorf

Johann-Heinrich-Schmülling-Schule

Neubau eines zentralen Schulhauses der Johann-Heinrich-Schmülling-Schule in Warendorf

Wettbewerb 2. Preis 2015

Auslober Bischöfliches Generalvikariat Münster

Das Blaue Klassenzimmer  - Neubau Seminargebäude für den Landesfischereiverband in Münster

Das Blaue Klassenzimmer

Neubau Seminargebäude für den Landesfischereiverband in Münster

Realisierung 2015

Bauherr Landesfischereiverband Westfalen und Lippe e.V.

Wohngebäude Kanonengraben - Neubau eines Mehrfamilienwohnhauses mit 4 Wohneinheiten in Münster

Wohngebäude Kanonengraben

Neubau eines Mehrfamilienwohnhauses mit 4 Wohneinheiten in Münster

Realisierung 2015

Bauherr privat

Marienschule Dülmen - Sanierung und Modernisierung der 4-zügigen Realschule

Marienschule Dülmen

Sanierung und Modernisierung der 4-zügigen Realschule

Realisierung 2015

Bauherr Bischöfliches Generalvikariat Münster

Schulzentrum Hameln - Erweiterung und Umstrukturierung der Gesamtschule in Hameln

Schulzentrum Hameln

Erweiterung und Umstrukturierung der Gesamtschule in Hameln

Wettbewerb 3. Preis 2014

Auslober Stadt Hameln

Familienbildungsstätte St. Agatha - Umnutzung der Filialkirche St. Johannes in Dorsten

Familienbildungsstätte St. Agatha

Umnutzung der Filialkirche St. Johannes in Dorsten

Wettbewerb 3. Preis 2014

Auslober Bildungsforum im Kreisdekanat Recklinghausen

LWL-Tagesklinik - Neubau Wohn- und Geschäftshaus mit LWL-Tagesklinik in Münster, in Zusammenarbeit mit verwohlt architekten BDA

LWL-Tagesklinik

Neubau Wohn- und Geschäftshaus mit LWL-Tagesklinik in Münster, in Zusammenarbeit mit verwohlt architekten BDA

Wettbewerb 1. Preis 2008

Realisierung 2014

Bauherr Westfälisch-Lippische Vermögensverwaltungsgesellschaft

SSC Uni Oldenburg - Neubau Studierenden-Service-Center für die Carl von Ossietzky Universität Oldenburg

SSC Uni Oldenburg

Neubau Studierenden-Service-Center für die Carl von Ossietzky Universität Oldenburg

Verhandlungsverfahren Zuschlag 2009

Realisierung 2014

Bauherr Land Niedersachsen, Staatliches Baumanagement Ems-Weser

Filialkirche St. Josef - Umnutzung, Umbau und Sanierung einer bestehender Kirche in Sythen

Filialkirche St. Josef

Umnutzung, Umbau und Sanierung einer bestehender Kirche in Sythen

Realisierung 2014

Bauherr Katholische Kirchengemeinde St. Sixtus, Haltern am See

Kita Haren - Neubau einer 5-zügigen Kindertagesstätte im Harener Stadtteil Erika-Altenberge

Kita Haren

Neubau einer 5-zügigen Kindertagesstätte im Harener Stadtteil Erika-Altenberge

Wettbewerb 1. Preis 2011

Realisierung 2013

Bauherr Stadt Haren (Ems), Amt für Bauen Planen

Sportgymnasium München - Neubau eines 4-zügigen Gymnasiums mit Eliteschule des Sports in München-Nord

Sportgymnasium München

Neubau eines 4-zügigen Gymnasiums mit Eliteschule des Sports in München-Nord

Wettbewerb 5. Preis 2012

Ausloberin Landeshauptstadt München

Sekundarschule Wetter - Erweiterung eines bestehenden Schulkomplexes

Sekundarschule Wetter

Erweiterung eines bestehenden Schulkomplexes

Wettbewerb 3. Preis 2012

Auslober Stadt Wetter (Ruhr)

Euronics - Neubau des Elektrofachmarktes Euronics XXL in Lüdinghausen

Euronics

Neubau des Elektrofachmarktes Euronics XXL in Lüdinghausen

Wettbewerb 2. Preis 2012

Bauherr May & Co. LUPUS GmbH & Co. KG

Sparkasse Hamm - Neubau einer Geschäftsstelle in Hamm Werries, in Zusammenarbeit mit verwohlt architekten BDA

Sparkasse Hamm

Neubau einer Geschäftsstelle in Hamm Werries, in Zusammenarbeit mit verwohlt architekten BDA

Wettbewerb 2. Preis 2012

Auslober Sparkasse Hamm

Wohnquartier Schulstraße - Neubau von 25 Wohnheinheiten in Münster, in Zusammenarbeit mit Berg Planungsgesellschaft mbH & Co. KG

Wohnquartier Schulstraße

Neubau von 25 Wohnheinheiten in Münster, in Zusammenarbeit mit Berg Planungsgesellschaft mbH & Co. KG

Wettbewerb 3. Preis 2006

Realisierung 2012

Bauherr Wohn+Stadtbau Münster

Pfarrheim St. Katharina  - Neubau des Pfarrheims St. Katharina in Olfen

Pfarrheim St. Katharina

Neubau des Pfarrheims St. Katharina in Olfen

Wettbewerb 1. Preis 2008

Realisierung 2012

Bauherr Katholische Kirchengemeinde St. Vitus Olfen

Wohnhaus W - Energetische Sanierung und Anbau eines Einfamilienhauses in Münster

Wohnhaus W

Energetische Sanierung und Anbau eines Einfamilienhauses in Münster

Realisierung 2012

Bauherr privat

Gemeindezentrum St. Suitbert  - Umbau und Erweiterung der Filialkirche zum Gemeindezentrum in Recklinghausen

Gemeindezentrum St. Suitbert

Umbau und Erweiterung der Filialkirche zum Gemeindezentrum in Recklinghausen

Realisierung 2012

Bauherr Katholische Kirchengemeinde St. Katharina von Siena Recklinghausen

Wohnviertel Dodesheide - Nachverdichten eines ehemaligen Britischen Garnisionswohnquartiers in Osnabrück

Wohnviertel Dodesheide

Nachverdichten eines ehemaligen Britischen Garnisionswohnquartiers in Osnabrück

Wettbewerb Anerkennung 2011

Auslober LIEMAK Immobilien GmbH

Kita Dodesheide - Neubau einer 5-zügigen Kindertagesstätte Osnabrück

Kita Dodesheide

Neubau einer 5-zügigen Kindertagesstätte Osnabrück

Wettbewerb 3. Preis 2011

Auslober Evangelische Stiftungen Osnabrück

Wohnhof Delstrup - Neubau von 19 Wohnheinheiten in Münster

Wohnhof Delstrup

Neubau von 19 Wohnheinheiten in Münster

Wettbewerb 1. Preis 2009

Realisierung 2011

Bauherr Wohn+Stadtbau Münster

Studentenwohnheime Gievenbeck - Energetische Modernisierung und Umgestaltung von 796 Wohneinheiten in Münster

Studentenwohnheime Gievenbeck

Energetische Modernisierung und Umgestaltung von 796 Wohneinheiten in Münster

Realisierung 2011

Bauherr Studentenwerk Münster

Sporthalle Miesbach - Neubau einer Dreifeldhalle, eines Parkdeck und einer Heizzentrale

Sporthalle Miesbach

Neubau einer Dreifeldhalle, eines Parkdeck und einer Heizzentrale

Wettbewerb Anerkennung 2010

Auslober Landkreis Miesbach

Kita Chamäleon - Neubau einer 5-zügigen Kindertagesstätte in Münster

Kita Chamäleon

Neubau einer 5-zügigen Kindertagesstätte in Münster

Preisträger Auszeichnung vorbildlicher Bauten in NRW 2010

Realisierung 2007

Bauherr Studentenwerk Münster

Polizei Passau - Neubau eines Dienstgebäudes für die Bayerische Landespolizei in Passau

Polizei Passau

Neubau eines Dienstgebäudes für die Bayerische Landespolizei in Passau

Wettbewerb 3. Preis 2010

Auslober Freistaat Bayern

Leistungssporthalle Lüdinghausen - Neubau einer Dreifeldsporthalle für den Leistungs- und Schulsport

Leistungssporthalle Lüdinghausen

Neubau einer Dreifeldsporthalle für den Leistungs- und Schulsport

Wettbewerb 1. Preis 2010

Auslober Stadt Lüdinghausen

Feuerwehrgerätehaus Gievenbeck - Neubau Fahrzeughalle sowie Seminarbereich und Betriebswartwohnung in Münster

Feuerwehrgerätehaus Gievenbeck

Neubau Fahrzeughalle sowie Seminarbereich und Betriebswartwohnung in Münster

Wettbewerb 1. Preis 2008

Realisierung 2010

Bauherr Stadt Münster, Amt für Immobilienmanagement

Feuer- und Rettungswache Hamm II - Neubau Fahrzeughalle sowie Seminartrackt für die Berufsfeuerwehr

Feuer- und Rettungswache Hamm II

Neubau Fahrzeughalle sowie Seminartrackt für die Berufsfeuerwehr

Wettbewerb 1. Preis 2002

Realisierung 2010

Bauherr Stadt Hamm, Technisches Rathaus

Wohngebäude Himmelreichallee - Neubau eines Mehrfamilienwohnhauses mit 3 Wohneinheiten und Tiefgarage in Münster

Wohngebäude Himmelreichallee

Neubau eines Mehrfamilienwohnhauses mit 3 Wohneinheiten und Tiefgarage in Münster

Realisierung 2010

Bauherr privat

Wohnhaus H - Neubau eines Einfamilienwohnhauses in Arnsberg

Wohnhaus H

Neubau eines Einfamilienwohnhauses in Arnsberg

Realisierung 2010

Bauherr privat

Wohnhaus E  - Neubau eines Einfamilienwohnhauses in Lüdinghausen

Wohnhaus E

Neubau eines Einfamilienwohnhauses in Lüdinghausen

Realisierung 2014

Bauherr privat

Schulzentrum Deegfeld - Energetische Modernisierung eines Schulzentrums in Nordhorn

Schulzentrum Deegfeld

Energetische Modernisierung eines Schulzentrums in Nordhorn

Wettbewerb 4. Preis 2009

Auslober Stadt Nordhorn

Marienschule Seppenrade - Umbau und Erweiterung der Mariengrundschule in Lüdinghausen Seppenrade

Marienschule Seppenrade

Umbau und Erweiterung der Mariengrundschule in Lüdinghausen Seppenrade

Wettbewerb 2. Preis 2009

Bauherr Stadt Lüdinghausen

Onkologie Oelde - Umbau einer Krankenhausstation zu einer Onkologischen Gemeinschaftspraxis

Onkologie Oelde

Umbau einer Krankenhausstation zu einer Onkologischen Gemeinschaftspraxis

Realisierung 2009

Bauherr Marienhospital Oelde

Wohnhaus D - Energetische Sanierung eines Wohngebäudes aus den 1930er Jahren in Berlin

Wohnhaus D

Energetische Sanierung eines Wohngebäudes aus den 1930er Jahren in Berlin

Realisierung 2009

Bauherr privat

Volksbank Coesfeld - Umbau zu einem Kompetenzzentrum der Volksbank in Coesfeld, in Zusammenarbeit mit verwohlt architekten BDA

Volksbank Coesfeld

Umbau zu einem Kompetenzzentrum der Volksbank in Coesfeld, in Zusammenarbeit mit verwohlt architekten BDA

Wettbewerb Ankauf 2009

Auslober VR-Bank Westmünsterland eG

Hallenbad Wolbeck - Sanierung, Modernisierung und barrierefreie Erschließung eines Hallenbads in Münster

Hallenbad Wolbeck

Sanierung, Modernisierung und barrierefreie Erschließung eines Hallenbads in Münster

Realisierung 2008

Bauherr Stadt Münster, Amt für Immobilienmanagement

Studentenwohnheime Bismarkallee - Projektsteuerung der energetischen Modernisierung und Umgestaltung in Münster, Planung behet bondzio lin architekten GmbH & Co. KG

Studentenwohnheime Bismarkallee

Projektsteuerung der energetischen Modernisierung und Umgestaltung in Münster, Planung behet bondzio lin architekten GmbH & Co. KG

Realisierung 2008

Bauherr Studentenwerk Münster

Erich-Klausener-Realschule   - Neubau des Ganztagsbereichs der Erich-Klausener-Realschule in Herten

Erich-Klausener-Realschule

Neubau des Ganztagsbereichs der Erich-Klausener-Realschule in Herten

Wettbewerb 1. Preis 2007

Bauherr Bischöfliches Generalvikariat Münster

bült büros  - Sanierung eines Bürohochhauses in Münster

bült büros

Sanierung eines Bürohochhauses in Münster

Realisierung 2007

Wohnhaus G - Neubau eines Einfamilienwohnhauses in Lüdinghausen

Wohnhaus G

Neubau eines Einfamilienwohnhauses in Lüdinghausen

Realisierung 2007

Bauherr privat

Behördenzentrum Idstein - Neubau und sanierung Amtsgericht und Polizeistation, Neubau Polizeihauptstelle

Behördenzentrum Idstein

Neubau und sanierung Amtsgericht und Polizeistation, Neubau Polizeihauptstelle

Wettbewerb 1. Preis 2002

Realisierung 2006

Bauherr Land Hessen, Hessisches Baumanagement Wiesbaden

Wohnquartier Marie-Curie-Straße - Neubau von 8 Doppelhaushälften in Lüdinghausen

Wohnquartier Marie-Curie-Straße

Neubau von 8 Doppelhaushälften in Lüdinghausen

Realisierung 2006

Bauherr privat

Wohnhaus N  - Neubau eines Einfamilienwohnhauses in Lüdinghausen

Wohnhaus N

Neubau eines Einfamilienwohnhauses in Lüdinghausen

Realisierung 2006

Bauherr privat

Wohnhaus J - Neubau eines Einfamilienwohnhauses in Lüdinghausen

Wohnhaus J

Neubau eines Einfamilienwohnhauses in Lüdinghausen

Realisierung 2013

Bauherr privat

Eurocampus - Neubau der Deutschen und Französischen Schule in Shanghai, China

Eurocampus

Neubau der Deutschen und Französischen Schule in Shanghai, China

Wettbewerb 1. Preis 2003

Realisierung 2005

Bauherr Deutsche und Französische Schule Shanghai

Seminargebäude LVM - Neubau von Konferenzräumen und Sanierung der Kantine in Münster

Seminargebäude LVM

Neubau von Konferenzräumen und Sanierung der Kantine in Münster

Wettbewerb 1. Preis 2002

Realisierung 2005

Bauherr LVM Versicherung Münster

Stadthalle Lüdinghausen - Umnutzung des historischen Betriebsgebäudes der DKV zu einer Bürgerhalle

Stadthalle Lüdinghausen

Umnutzung des historischen Betriebsgebäudes der DKV zu einer Bürgerhalle

Wettbewerb 3. Preis 2004

Auslober Stadt Lüdinghausen

Feuerwehrgerätehaus Werse-Laer - Neubau Fahrzeughalle sowie Seminarbereich und Betriebswartwohnung in Münster

Feuerwehrgerätehaus Werse-Laer

Neubau Fahrzeughalle sowie Seminarbereich und Betriebswartwohnung in Münster

Wettbewerb 1. Preis 2002

Realisierung 2004

Bauherr Stadt Münster, Amt für Immobilienmanagement

Restaurant Wolters - Innenausbau eines Kornspeichers zu einem Restaurant am Stadthafen in Münster

Restaurant Wolters

Innenausbau eines Kornspeichers zu einem Restaurant am Stadthafen in Münster

Realisierung 2004

Bauherr privat

Ackerbürgerhaus - Sanierung und Umbau zur Galerie eines denkmalgeschützten Hauses in Lüdinghausen

Ackerbürgerhaus

Sanierung und Umbau zur Galerie eines denkmalgeschützten Hauses in Lüdinghausen

Realisierung 2002

Bauherr Privat

Wohngebäude Sertürnerstraße - Umbau und Erweiterung von 18 Wohneinheiten in Münster

Wohngebäude Sertürnerstraße

Umbau und Erweiterung von 18 Wohneinheiten in Münster

Realisierung 2002

Bauherr privat

Wohngebäude Von-Einem-Straße - Dachaufstockung und Sanierung von 24 Wohneinheiten in Münster

Wohngebäude Von-Einem-Straße

Dachaufstockung und Sanierung von 24 Wohneinheiten in Münster

Realisierung 2001

Bauherr privat

ORAG Raphaelsklinik Münster - Umbau zur einer Orthopädisch-Radiologischen Apparategemeinschaftspraxis, in Zusammenarbeit mit der Bauabteilung der Raphaelsklinik Münster

ORAG Raphaelsklinik Münster

Umbau zur einer Orthopädisch-Radiologischen Apparategemeinschaftspraxis, in Zusammenarbeit mit der Bauabteilung der Raphaelsklinik Münster

Realisierung 2000

Wohnquartier Paterkamp  - Neubau von 16 Reihenhäusern in Lüdinghausen

Wohnquartier Paterkamp

Neubau von 16 Reihenhäusern in Lüdinghausen

Realisierung 1998

Bauherr privat