Johann-Heinrich-Schmülling-Schule

Neubau eines zentralen Schulhauses der Johann-Heinrich-Schmülling-Schule in Warendorf

Wettbewerb 2. Preis 2015

Auslober Bischöfliches Generalvikariat, Münster

Aus der Jurybeurteilung

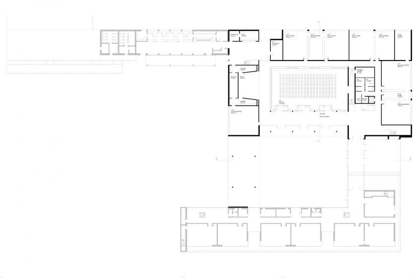
Der Baukörper ist an der nordöstlichen Ecke des Grundstückes an der bisherigen Position des bestehenden Baukörpers positioniert. Mit der vorgeschlagenen, fast durchgängigen Zweigeschossigkeit, fügt sich der Neubau proportional gut nachvollziehbar in das bauliche Umfeld ein. Die Akzentuierung durch die Aufstockung eines dritten Geschosses in Nähe des Eingangs ist richtig gewählt, funktional mit der Unterbringung des Meditationsraumes und des Selbstlernzentrums gut belegt.

Ein überzeugendes Merkmal des Entwurfes ist die Verbindung des vorhandenen Baukörpers mit dem Neubau im 1.OG, wodurch eine neue, hochwertige Hofsituation zwischen Neu- und Altbau geschaffen wird. Die innere Anordnung der Räume ist funktional und klar gegliedert. Mit der Position des Lehrerzimmers als Brückenglied zwischen Neu- und Altbau gewährt dies eine gute Erreichbarkeit aller Räume. Das gesamte Schulgebäude ist mit nur einer Aufzuganlage behindertengerecht erschlossen.